Клапаны изготовленные по ТУ 3742-001-22986183-2009 предназначены для эксплуатации в энергетическом и нефтеперерабатывающем оборудовании в качестве запорных устройств на трубопроводах для жидких сред.
Герметичность затвора клапанов по классу А ГОСТ Р 54 808-2011.
Рабочее давление: 6,3 (63); 10 (100); 16 (160); 20 (200); 25 (250) мпа (кгс/см2)
Диапазон условных проходов от 15 мм до 25 мм.
Возможно изготовление на давления 1,6...4,0 МПа
Рабочая среда: жидкие среды, в том числе нефть и нефтепродукты, водогазонефтяные смеси, агрессивные среды, вода для технических нужд, газ.
Температура рабочей среды: до +425 0 С (исполнения -00; -01); до +565 0 С (исполнения -02; -10).
Климатическое исполнение по ГОСТ 15150-69: У (от -400Сдо +40 0 С), ХЛ (от +40 0 0. Категория размещения 1 по ГОСТ 15150-69.
Присоединение к трубопроводу: под приварку; муфтовое; фланцевое.
Управление — ручное, электроприводом.
По требованию заказчика клапаны могут комплектоваться ответными фланцами по ГОСТ 12821-80, прокладками и крепежными деталями.
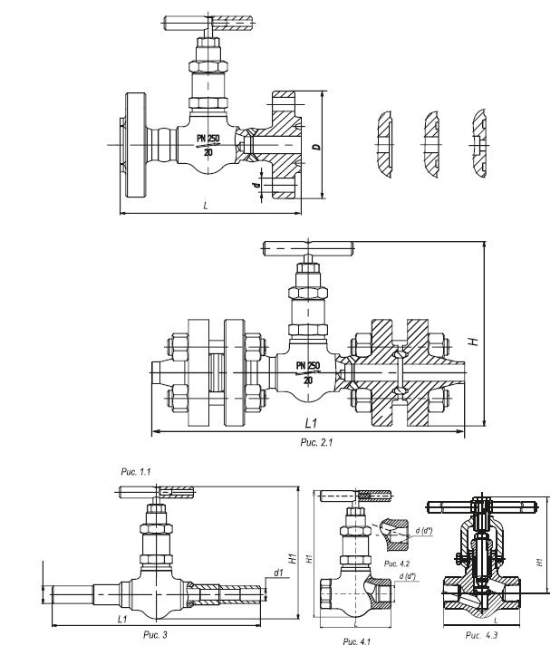
ГАБАРИТНЫЕ И ПРИСОЕДИНИТЕЛЬНЫЕ РАЗМЕРЫ ЗАПОРНЫХ ФЛАНЦЕВЫХ КЛАПАНОВ ПС.21006
|
Dn, mm |
D |
d |
L |
L1* |
H |
Масса кг (С ответными фланцами) |
|
мм |
||||||
|
Pn, Мпа 6.3 ; 10.0 ; 16.0 |
||||||
|
15 |
105 |
14 |
134 |
240(248) |
215 |
4.16(983) |
|
20 |
125 |
18 |
158 |
276(284) |
225 |
5.77(13.0) |
|
25 |
135 |
18 |
164 |
292(300) |
230 |
6.00(13.3) |
|
Pn, Мпа 20 |
||||||
|
15 |
120 |
22 |
180 |
288(298) |
223 |
5.76(13.10) |
|
20 |
130 |
22 |
180 |
294(304) |
227 |
7.05(15.56) |
|
25 |
150 |
26 |
195 |
310(320) |
237 |
8.34(16.03) |
|
Pn, Мпа 25 |
||||||
|
15 |
120 |
22 |
180 |
(326) |
223 |
5.69(13.14) |
|
20 |
130 |
22 |
220 |
(384) |
227 |
7.38 (16.11) |
|
25 |
150 |
25 |
230 |
(415) |
237 |
10.13(23.97) |
Трубопроводная арматура, нефтегазовое оборудование, нефтепромысловое оборудование, 9064-75, 9066, гайка фланцевая, гайка для фланцевых соединений, завод трубопроводной арматуры, производство трубопроводной арматуры, производитель трубопроводной арматуры, трубопроводная запорная арматура,клапан запорный прямой, испытание трубопроводной арматуры, завод трубопроводной арматуры официальный сайт, деталь трубопроводной арматуры, арматура промышленная трубопроводная, трубопроводная арматура купить, ремонт трубопроводной арматуры, виды трубопроводной арматуры, цкба арматура трубопроводная, затворы трубопроводная арматура, ст цкба арматура трубопроводная, уральская трубопроводная арматура, трубопроводная арматура клапан, требования +к трубопроводной арматуре, сварка трубопроводной арматуры,герметичность трубопроводной арматуры, трубопроводная арматура сталь, соединения трубопроводной арматуры, типы трубопроводной арматуры, материалы трубопроводной арматуры, изготовление трубопроводной арматуры, маркировка трубопроводной арматуры, нормы герметичности арматуры трубопроводной, обозначение трубопроводной арматуры, арматура трубопроводная нормы герметичности затвора, трубопроводная арматура производители, гост арматура трубопроводная нормы герметичности затворов, трубопроводная арматура давление, трубопроводная арматура челябинск, трубопроводы +и трубопроводная арматура, трубопроводная арматура определение, класс трубопроводной арматуры, приводы трубопроводной арматуры, гост 9544 2015 арматура трубопроводная, трубопроводный кран трубопроводная арматура, регулирующая трубопроводная арматура, назначение трубопроводной арматуры, клапан запорный 15лс68нж, 15лс68нж 09г2с,15лс68нж фланцевый,15лс68нж ду25, вентиль 15лс68нж, 15лс68нж цена, зкс 25 40 15лс68нж, клапан запорный фланцевый 15лс68нж, вода и пар, газообразные среды, нефтепродукты; углеродистая сталь, запорно регулирующей клапан, клапан запорно регулирующий,запорно регулируемый клапан,клапан запорный фланцевый, предохранительно запорный клапан,ручной запорный клапан, клапан запорный угловой, клапана запорные купить, клапан запорный муфтовый, клапан вентиль запорный, клапан запорный проходной,клапан запорный электромагнитный, клапан запорный газовый,клапана краны запорные, клапан запорный ду15, пожарный запорный клапан, клапан запорный ду50, устройство запорного клапана, обратный запорный клапан, клапан запорный латунный, клапан сильфонный запорный,клапан запорный pn16, клапан запорный сталь, клапан запорный ду25, клапан запорный гост, автоматический запорный клапан, клапан запорный dn15, запорный клапан danfoss, клапан запорно присоединительный, клапан запорный электромагнитный газовый, клапан запорный сальниковый,корпус запорного клапана, клапан запорный игольчатый, клапан запорный под приварку, клапан запорный латунь, запорный клапан ридан, клапан запорный чугунный, клапан запорный ду 25, клапан запорный ду 50, установка запорного клапана, клапаны запорно регулирующие кзр, шаровой запорный клапан, клапан запорный 15с65нж, клапан запорный проходной фланцевый, запорный клапан трубопровода, клапан запорный муфтовый латунный, клапан запорный dn20, давление предохранительного запорного клапана